房产类型: 公寓 Wohnung

斯图加特-Vaihingen正市中心6户小洋楼

70563, Stuttgart-Vaihingen

项目ID: E7056310

基本信息

项目-ID

E7056310

入住日期

2025

总户数

6

中介费

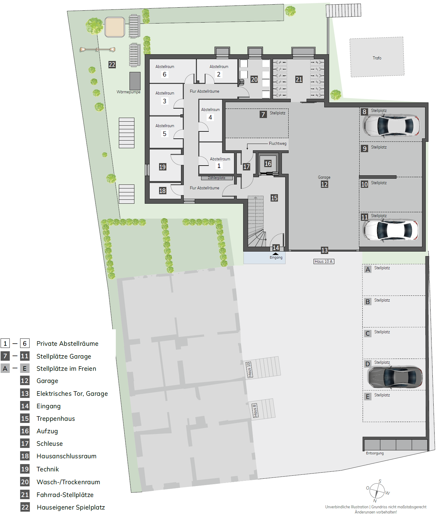
在售车库

5

车库售价

29900 €

在售户外停车位

2

停车位售价

19900 €
地铁站旁,交通方便
附近有超市,可步行购物
高速口附近,开车方便
容易出租,投资推荐
商铺林立,咖啡馆,商店,餐厅应有尽有

🏠 房产描述 Objektbeschreibung

这是一座正在建造的现代化的公寓楼,位于斯图加特Vaihingen的正市中心,总共仅有6户家庭,由当地著名的德国房地产商建造。

底层有车库停车位,室外停车位。

📍 位置 Lage

该公寓位于Vaihingen绝对市中心位置,步行至Schwabgalerie只有100米距离,距离U-Bahn站 Fauststraße仅有200米距离,步行至S-Bahn站 Vaihingen仅需8分钟时间。楼下格式餐厅,商场,娱乐场所应有尽有。而且开车5分钟即可到达A81高速口。是整个斯图加特极为难得,几乎是绝无仅有的地理位置。

我们提供免费的贷款咨询
帮您找到条件最好的贷款

我们提供专业的购房咨询
甄别房屋隐藏缺陷
一站式完成购房

我们提供全德国各大城市的
房产讨论群

✨ 房屋配备 Ausstattungen

室内/地下 停车位 Garage
电动遮阳帘 Elektrorolladen
地暖 Bodenheizung
电梯 Aufzug
实木地板 Parkettboden
地下室 Keller
Balkon

我到底能贷款多少?

大家最经常问道的问题就是,我能买多贵的房子?

通过我们的计算器,大家可以轻松的计算出,根据自己的收入,自己能贷款多少钱。

项目列表 Neubau-Einheiten