已成交:

房产类型: 别墅 House

斯图加特-打折村Metzingen附近 两户别墅ZFH出售, 9个房间带花园

72581, Dettingen an der Erms

项目ID: K7258159

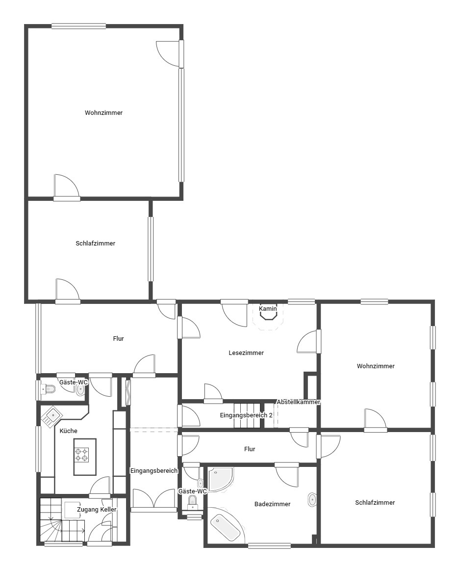
室内面积: 243 m2
房间数: 9

基本信息

项目-ID

K7258159

房产类型

两户别墅ZFH

房间数

9

土地面积

504 m2

室内面积

243 m2

入住日期

马上

房龄

1885

中介费

3,57% inkl. MwSt.

浴室

2

客卫

车库

1

车库售价

– €
容易出租,投资推荐
地铁站旁,交通方便
附近有超市,可步行购物
高质量好房,自住推荐
高速口附近,开车方便

🏠 房产描述 Objektbeschreibung

这座位于德廷根(Dettingen)的双层别墅是自住或投资的理想选择。这座建于1885年的物业保持得井井有条。

该物业提供了大约243平方米的家庭友好型生活空间,共有9个房间,其中包括6间卧室,非常适合大家庭。 Grundriss还包括2间带淋浴和/或浴缸的浴室。引人注目的配备,包括内置厨房和强化木地板,为其提供了特别高的舒适度。您在这里有选择,可以将物业用于自住,也可以从出租的经济优势中受益。由于它具有2个可以单独使用的单元,因此这座多户住宅非常适合多代人家庭,以及部分或全部出租。完美地实现或资助您自己的住宅梦想。

在室外,您可以享受约504平方米的大型土地。花园和露台是特别的亮点。无论是享受阳光,玩耍还是尝试您的园艺技能 – 这里所有的需求都得到了充分满足。您还可以在露台上度过轻松的时光。地下室为居民提供了额外的储藏空间。此外,车库可以确保汽车得到安全存放。

📍 位置 Lage

位于德廷根(Dettingen)宁静而靠近自然。在这里,您和您的租户将生活在斯瓦比亚阿尔卑斯山脚下,距离劳特林根(约13公里)或梅青根(约5公里)令人向往的地方。该地区的有林丘陵地形非常适合散步和徒步旅行,因此您或您的租户可以在周围享受高度的休闲价值。

在半径最多一公里的舒适区域内,有超市、药店、面包店和餐厅等设施。您可以通过汽车轻松地在大约5分钟内到达梅青根市中心。在这里,您会发现许多其他购物场所,例如“Outletcity Metzingen”、服务商和各种迷人的餐馆。家庭还可以从附近的2个游乐场、3个幼儿园、一所实验学校和一所全日制学校中受益,这些都在步行可达的方便距离内。

约100米处有一处巴士站,可以方便地连接到城市的公共交通系统。Dettingen火车站距离约2分钟步行路程,可连接到区域和远程交通,包括到劳特林根、蒂宾根和斯图加特的列车。联接道路网络的有联邦公路28、312和313。

我们提供免费的贷款咨询
帮您找到条件最好的贷款

我们提供免费的购房咨询
甄别房屋隐藏缺陷
获得内部最低房价

✨ 房屋配备 Ausstattungen

室内/地下 停车位 Garage
花园 Garten
露台 Terrasse
地下室 Keller
一体式厨房 Einbauküche
私人娱乐室 Hobbyraum
浴缸 Badewanne
开放式壁炉

我到底能贷款多少?

大家最经常问道的问题就是,我能买多贵的房子?

通过我们的计算器,大家可以轻松的计算出,根据自己的收入,自己能贷款多少钱。

ENERGIEKLASSE

Energieausweis

Verbrauchsausweis

Wessentlicher-Energieträger

Fernwärme

Energie-Effizienzklasse

A+

Energiebedarf