已成交:

房产类型: 公寓 Wohnung

斯图加特-主火HBF边上实用型好房出售

70190, Stuttgart

项目ID: H7019006

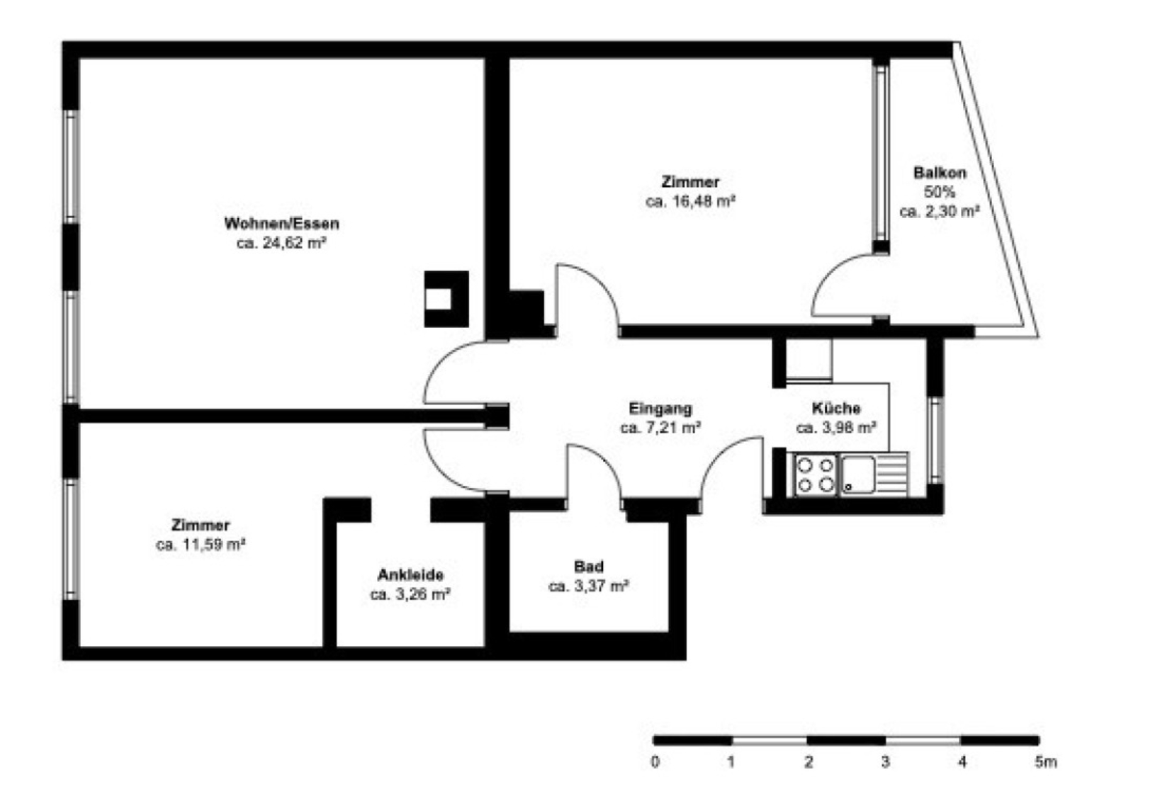
室内面积: 71 m2
房间数: 3

基本信息

项目-ID

H7019006

房产类型

公寓 Etagenwohnung

房间数

3

室内面积

71 m2

楼层

地上四层 4. OG

入住日期

马上

房龄

1958

中介费

1,75% inkl. MwSt.

物业费 Hausgeld

– €

客卫

车库

1

车库售价

– €
容易出租,投资推荐
地铁站旁,交通方便
附近有超市,可步行购物

📍 位置 Lage

我们提供免费的贷款咨询
帮您找到条件最好的贷款

我们提供免费的购房咨询
甄别房屋隐藏缺陷
获得内部最低房价

✨ 房屋配备 Ausstattungen

室内/地下 停车位 Garage
地下室 Keller
一体式厨房 Einbauküche

我到底能贷款多少?

大家最经常问道的问题就是,我能买多贵的房子?

通过我们的计算器,大家可以轻松的计算出,根据自己的收入,自己能贷款多少钱。

项目照片 Gallerie

ENERGIEKLASSE

Energieausweis

Verbrauchsausweis

Wessentlicher-Energieträger

Gas

Energie-Effizienzklasse

D

Energiebedarf

118 kWh/(m2)a